15 Surf DriveForward Twp, PA 15020




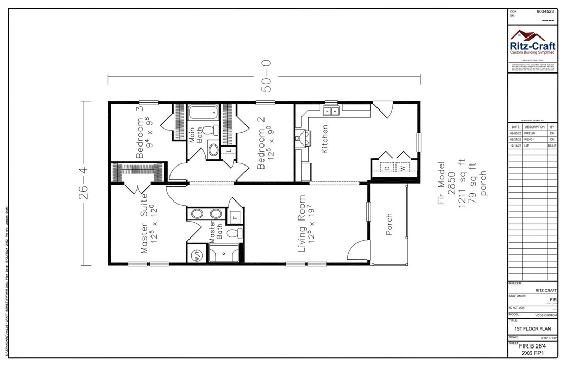
Looking for a 3-bed manufactured home in Bunola PA under $150K with river views and golf access nearby? This 2024 never lived in home at delivers 3 bedrooms, 2 baths, 1,211 sq ft, and a private deck off the primary suite in Bunola Estates Community. Excellent option for year round living OR a weekend getaway. Welcome to 15 Surf Dr, Bunola, PA 15020. This brand new 2024 manufactured home offers 3 bedrooms, 2 full baths, and 1,211 sq ft of thoughtfully designed living space in Bunola Estates Community. Located directly across from Riverview Golf Course and within walking distance to the marina, plus three additional marinas just a short drive away, this home delivers a true river lifestyle. The primary bedroom features sliding glass doors that open to a private rear deck with river views. Open concept living connects kitchen and main living areas for easy flow. Natural light soaks into the living space creating a welcoming entrance. There is laundry in the home conveniently located for all the beach towels. Two on street parking spaces included. Enjoy peace of mind with a 1 year factory warranty, manufacturer warranties beginning in year 2, and a 10 year structural warranty. Located in the Elizabeth Forward School District.
| 3 weeks ago | Listing first seen on site | |
| 3 weeks ago | Listing updated with changes from the MLS® |
INFORMATION DEEMED RELIABLE, BUT NOT GUARANTEED. IDX information is provided exclusively for consumers’ personal, non-commercial use and may not be used for any purpose other than to identify prospective properties consumers may be interested in purchasing.
Last checked: 2026-03-06 02:17 AM UTC
Did you know? You can invite friends and family to your search. They can join your search, rate and discuss listings with you.